Αναρτήθηκε με απόφαση της Προέδρου Εφετών κ. Μ. Λιάνου στην ιστοσελίδα του Εφετείου Λάρισας η περιγραφή του χώρου στον οποίο θα γίνει η εκδίκαση του πολύνεκρου σιδηροδρομικού δυστυχήματος των Τεμπών.
Συγκεκριμένα, η δίκη που προσδιορίστηκε για τις 23 Μαρτίου 2026 σύμφωνα με την ΕΡΤ θα γίνει στο πρώην συνεδριακό κέντρο του Πανεπιστημίου Θεσσαλίας και συγκεκριμένα στην πανεπιστημιούπολη ΓΑΙΟΠΟΛΙΣ.

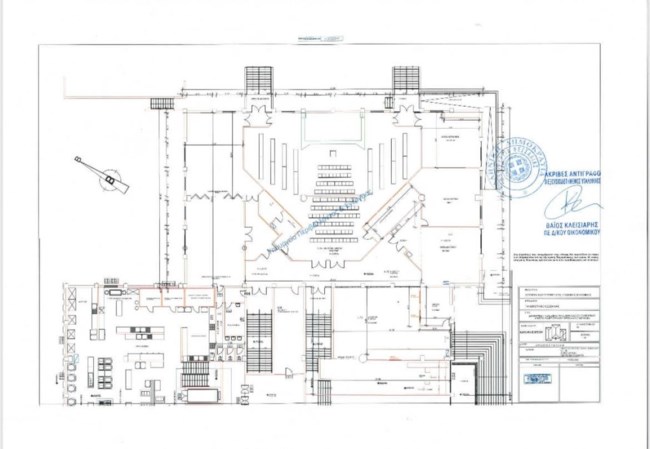
Με πράξη της Διευθύνουσας το Εφετείο Λάρισας ορίστηκε η αίθουσα συνεδριάσεων (ακροατήριο) για την εκδίκαση της υπόθεσης με τριάντα έξι (36) κατηγορούμενους για τις πράξεις: α) της επικίνδυνης παρέμβασης στη συγκοινωνία μέσων σταθερής τροχιάς με ενδεχόμενο δόλο με επικίνδυνες για την ασφάλεια της συγκοινωνίας πράξεις, η πράξη δε αυτή είχε ως αποτέλεσμα: α) το θάνατο μεγάλου αριθμού ανθρώπων, β) τη βαριά σωματική βλάβη μεγάλου αριθμού ανθρώπων και τη σημαντική βλάβη σε εγκαταστάσεις κοινής ωφέλειας, γ) τη δυνατότητα κινδύνου περισσότερων προσώπων και δ) τη δυνατότητα κοινού κινδύνου για ξένα πράγματα, τελεσθείσας και κατ’ εξακολούθηση και από κοινού, β) της ανθρωποκτονίας από αμέλεια κατά συρροή, γ) της βαριάς σωματικής βλάβης από αμέλεια, από υπόχρεο κατά συρροή, δ) της απλής σωματικής βλάβης από αμέλεια, από υπόχρεο κατά συρροή και ε) της παράβασης καθήκοντος τελεσθείσας και από κοινού, που έχει προσδιοριστεί να συζητηθεί την 23η Μαρτίου 2026, ημέρα Δευτέρα, ενώπιον του Τριμελούς Εφετείου Κακουργημάτων Λάρισας (Α’ Βαθμού), την αίθουσα διαλέξεων του Συνεδριακού Κέντρου του Πανεπιστημίου Θεσσαλίας στο συγκρότημα "ΓΑΙΟΠΟΛΙΣ" (πρώην Τ.Ε.Ι. Λάρισας), εμβαδού 283,75 τ.μ., όπου θα εγκατασταθεί η έδρα του Δικαστηρίου, τα έδρανα των δικηγόρων, καθώς και οι θέσεις των κατηγορουμένων κλπ
Ως επιπρόσθετη αίθουσα συνεδριάσεως (ακροατήριο) για την εκδίκαση της υπόθεσης: α) τον εκ δεξιών της εισόδου κύριο χώρο υποδοχής του ανωτέρω Συνεδριακού Κέντρου, εμβαδού 109,57 τ.μ., όπου θα εγκατασταθούν θέσεις ακροατηρίου με οθόνες και β) τον χώρο φουαγιέ του Συνεδριακού Κέντρου, εμβαδού 82,58 τ.μ., όπου επίσης θα εγκατασταθούν θέσεις ακροατηρίου με οθόνες.
ΠΗΓΗ ΕΡΤ
Οι πιο πρόσφατες Ειδήσεις
Διαβάστε πρώτοι τις Ειδήσεις για ό,τι συμβαίνει τώρα στην Ελλάδα και τον Κόσμο στο thetoc.gr
